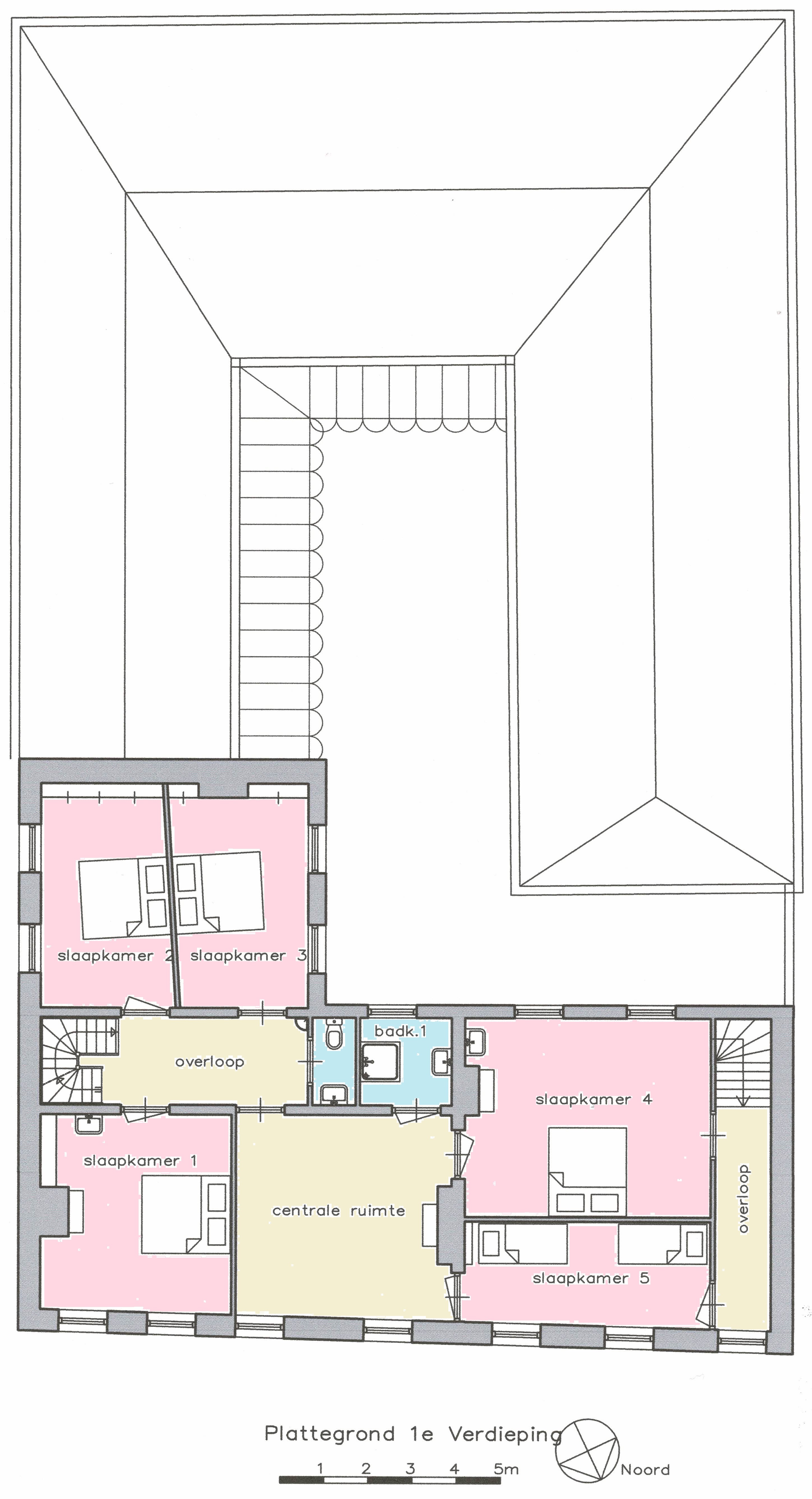
1e verdieping

eerste verdieping.
de eerste verdieping is bereikbaar met 2 trappen, vanuit nr 3 en nr 5
op de verdieping bevinden zich 5 stuks 2 persoon-slaapkamers, een centrale kamer met grote ruim gevulde linnenkast en 1 bed, een aparte toiletruimte en een badkamer met douche.
3 slaapkamers hebben een eigen wastafel.
de 5 open haarden zijn niet functionerend.
de ruimtes kunnen elektrisch bij verwarmd worden.
de meeste kamers zijn voorzien van ‘authentieke' rolluiken of luiken.
contact : rob@robvanderheide.nl 0031 6 5350 1617
